ARCM剩余電流式電氣火災監控裝置安裝在低壓配電系統中,用于檢測系統中的剩余電流、溫度等有關電氣火災隱患產生的電氣參數,當被保護線路中監控裝置參數超過報警設定值時,能發生報警和控制信號,以便消除剩余電流引起的電氣火災隱患。產品采用RS485總線進行通訊,可以與其它監控報警器、監控單元或監控主機聯合組成火災監控系統,可根據用戶需要選擇集中總線型的信息管理模式或功能分區型的信息管理模式。
適用于智能樓宇、高層公寓、賓館、飯店、商廈、工礦企業、國家重點消防單位以及石油化工、文教衛生、金融、電信等領域,符合GB 14287.2-2005《電氣火災監控系統第2部分:剩余電流式電氣火災監控探測器》及GB 13955-2005《剩余電流動作保護裝置的安裝和運行》的標準。
2 適用環境
工作溫度:-10℃~+55℃
儲存溫度:-20℃~+70℃
相對濕度:≤95%不結露
海拔高度:≤2500m
污染等級:Ⅲ級,安裝類別:Ⅲ級
3 產品選型一覽表

4 產品介紹
4.1 ARCM100-Z監控儀表

4.1.1 功能
● 具有剩余電流保護、溫度保護、過壓保護、缺相保護、過流保護等多種保護功能;
● 實時地對回路的三相電壓、三相電流、頻率、功率、四象限電能和基波、總諧波電能等電參量進行測量;
● 提供三路開關量輸入功能,可連接消防聯動信號和煙霧報警信號,高可靠性地實現消防系統通過裝置遠程控制,強制切斷故障點電源;
● 繼電器保護輸出:具有報警輸出和脫扣輸出的功能,同時可將開關狀態反饋到消防系統中;
● 采用先進的現場總線通信技術,上位機管理軟件可以實時監控現場的運行狀況,及時發出報警信息;
● 具有事件存儲功能,報警器能夠記錄報警發生的時間、類型、參數和相序,根據報警記錄可以分析現場的用電情況,為消除故障提供依據;
● 實時溫度監控功能,對傳感器進行在線檢測,傳感器斷線、短接都會發出告警信號;
● 掉電保護功能,當監控裝置處于報警狀態時遇到斷電情況,下次上電時仍然會保持斷電前的報警狀態,防止由于斷電、復位等原因導致的報警無效的情況;
● 適用于0.4kV電壓等級TN-C-S、TN-S及局部TT系統。
4.1.2 技術參數

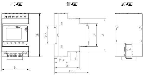
4.1.3 外形及安裝尺寸(mm)

4.1.4 接線端子

4.2 ARCM200-J1、ARCM200L-J1、ARCM200-J4、ARCM200L-J4監控儀表

4.2.1 功能
● 可在線監測多路的漏電流,各相電纜溫度信號;
● 額定剩余電流動作值,脫扣延時,可根據需要靈活設置,溫度動作值也可編程;
● 畫面暫留功能,漏電故障發生時該通道顯示畫面暫留,表示該通道漏電或超溫時的值,方便上位機的故障記錄;
● 采用現場總線通信技術,上位機管理軟件可以時刻監控現場的運行情況,及時發現報警信息。通過RS485接口,標準MODBUS協議可以與各種標準系統相連;
● ARCM200L-J1、ARCM200L-J4具有事件存儲功能,報警器能夠記錄報警發生的時間、類型、參數,根據報警記錄可以分析現場的用電情況,為消除故障提供依據;
● 集成度高,網絡化,智能化程度高,動作特性合理;
● 適用于0.4kV電壓等級TN-C-S、TN-S及局部TT系統。
4.2.2 技術參數

4.2.3 外形及安裝尺寸(mm)

4.2.4 接線端子
ARCM200-J1接線端子
信號端子(T1、T2、T3為溫度信號接入)

電源、通訊端子

繼電器輸出(J1為脫扣輸出,J2、J3、J4為報警輸出)

ARCM200-J4接線端子
信號端子

電源、通訊端子

繼電器輸出

4.3 ARCM300-J1、ARCM300-J4、ARCM300-J8監控儀表

4.3.1 功能
● 可在線監測單路或多路的漏電流,各相電纜溫度信號,每路通道具有斷線、短路檢測功能;
● 額定剩余電流動作值,脫扣延時及動作類型可根據需要靈活設置;
● 標準35mm導軌式安裝,LCD或LED顯示;
● 畫面暫留功能,漏電故障發生時,該通道顯示畫面暫留,表示該通道漏電或超溫時的值,方便上位機的故障記錄;
● 具有事件存儲功能,報警器能夠記錄報警發生的時間、類型、參數,根據報警記錄可以分析現場的用電情況,為消除故障提供依據;
● 采用現場總線通信技術,上位機管理軟件可以時刻監控現場的運行情況,及時發現報警信息。通過RS485接口,標準MODBUS協議可以與各種標準系統相連;
● 集成度高,網絡化,智能化程度高,動作特性合理;
● 適用于0.4kV電壓等級TN-C-S、TN-S及局部TT系統。
4.3.2 技術參數

4.3.3 外形及安裝尺寸(mm)
● ARCM300-J1、ARCM300-J4

●ARCM300-J8

●安裝方式

4.3.4 接線端子
ARCM300-J1接線端子
信號端子

電源、通訊端子

繼電器輸出

ARCM300-J4接線端子
信號端子

電源、通訊端子

繼電器輸出

lARCM300-J8接線端子

4.4 ARCM500-J32電氣火災監控探測器

4.4.1 功能
● 與AKH-0.66LXXD、ARCM200/300配合,最大支持32回路剩余電流和96回路溫度監測,可以組建小型電氣火災監控系統;
● 額定剩余電流動作值、溫度動作值及動作延時,可根據需要靈活設置,監控單元根據設定值進行報警保護;
● 監控單元具備繼電器保護輸出,可實現遠程聲光報警的功能;
● 具有事件存儲功能,監控單元能夠記錄報警發生的時間、位置及報警參數,根據報警記錄可以分析現場的絕緣情況,為消除故障提供依據;
● 采用現場總線通信技術,上位機管理軟件可以時刻監控現場的運行情況,及時發送報警信息。通過RS485接口,標準MODBUS協議可以與各種標準系統相連;
● 適用于0.4kV電壓等級TN-C-S、TN-S及局部TT系統。
4.4.2 技術參數

4.4.3 外形及安裝尺寸(mm)

4.4.4 接線端子

5 附件
5.1 AKH-0.66L系列模擬型剩余電流互感器
5.1.1 產品外觀

5.1.2 互感器選型表

5.2 AKH-0.66LXXD系列數字型剩余電流互感器

5.2.1 功能
● 實時監測單回路剩余電流,并可根據設定進行報警;
● 額定剩余電流動作值和動作延時,可根據需要靈活設置;
● 數字處理模塊直接嵌入到互感器內部,實現了互感器數字化,信號可靠性高;
● 具有事件存儲功能,報警器能夠記錄報警發生的時間、參數,根據報警記錄可以分析現場的絕緣情況,為消除故障提供依據;
● 采用現場總線通信技術,上位機管理軟件可以時刻監控現場的運行情況,及時發現報警信息。通過RS485接口,標準MODBUS協議可以與各種標準系統相連;
● 適用于0.4kV電壓等級TN-C-S、TN-S及局部TT系統。
5.2.2 技術參數

5.2.3 互感器選型表

5.2.4 接線端子

5.3 ARCM-NTC溫度傳感器

溫度傳感器為一熱敏電阻NTC,它提供0~120℃的溫度監控基準,可以用來監測線纜或配電箱體的溫度,提供溫度保護。
6 應用方案
樓層間照明/動力配電箱設計圖

低壓配電柜設計圖
