485總線應采用什么樣的通訊線
必須采用國際上通行的屏蔽雙絞線。我們推薦用的屏蔽雙絞線的型號為RVSP2*0.5(二芯屏蔽雙絞線,每芯由16股的0.2mm的導線組成)。采用屏蔽雙絞線有助于減少和消除兩根485通信線之間產生的分布電容以及來自于通訊線周圍產生的共模干擾。
為什么485總線要采用手拉手結構,而不能采用星形結構?
星形結構會產生反射信號,從而影響到485通信。總線到每個終端設備的分支線長度應盡量短,一般不要超出5米。分支線如果沒有接終端,會有反射信號,對通訊產生較強的干擾,應將其去掉。
如何延長485的通訊距離
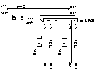
485網絡的規范之一是1.2公里長度,32個節點數。如果超出了這個限制,那么必須采用485中繼器或485集線器來拓展網絡距離或節點數。
利用485中繼器或485集線器,可以將一個大型485網絡分隔成若干個網段。485中繼器或485集線器就如同485網段之間連接的"橋梁"。當然每個網段還是遵循上面的485規范,即1.2公里長度,32個節點數。
利用485中繼器延長網絡距離圖示:
 利用485中繼器解決485分叉問題,如圖所示:
 利用485集線器構造星型485網絡
 485集線器是485中繼器概念的拓廣,它不僅解決了多分叉問題,同時也解決了網段之間相互隔離的問題,即某一個網段出現問題(例如短路等),不至于影響到其它網段,從而極大地提高了大型網絡的安全性和穩定性。 我們可以從局域網從總線型到星型的發展歷程,來體會星型布線網絡給我們帶來的好處。同樣,采用485集線器構成的星型485網絡也將是485網絡發展的一個方向。
|