|
文章主要是對蒸發冷卻空調系統自動控制方面的研究,首先設計了一個較完善的集中式蒸發冷卻空調系統的自動控制方案然后對其進行優化,并引入了變風量系統的設計思路對風機進行變頻控制,使得整個空調系統達到了最佳的溫濕度控制,同時大大降低了能耗。
1 蒸發冷卻技術應用現狀及其存在的問題
1.1 蒸發冷卻技術簡介
盛夏,生活在干燥炎熱地區的人們知道,一場雨過后,天氣涼爽舒適;在潮濕地區,當人們來到海邊或湖邊,涼風吹來,頓時讓人涼爽舒暢。這是因為雨水或海水吸收了空氣中的熱量而蒸發,空氣溫度下降,人們會有不一樣的涼爽感受。
蒸發冷卻空調正是運用這一自然現象以水作為制冷劑,由于不使用CFCs,因而對大氣環境無污染,而且可直接采用全新風,極大地改善了室內的空氣品質。同通常的機械制冷原理一樣,由制冷劑的蒸發而提供冷量。但是對蒸發冷卻來說,是利用水的蒸發取得能量,它不必將蒸發后的水蒸汽在進行壓縮,冷凝回到液態水后在進行蒸發。因此與機械制冷相比,蒸發冷卻制冷不需要消耗壓縮功,這使得它的COP值有時比機械制冷要大得多,從而取得節能效果。
1.2 蒸發冷卻技術應用現狀
目前蒸發冷卻技術的應用相當廣泛。最早應用蒸發冷卻技術的地區是美國的西南部和澳大利亞等地區,該地區的氣候特征雖然溫暖但比較干燥,蒸發冷卻空調在此得到廣泛應用。賓館、辦公室、餐飲、娛樂、體育館、影劇院等公共場所和一些工業建筑中已廣泛應用蒸發冷卻技術,僅在新疆地區完成的蒸發冷卻工程項目已有近百個。
1.3 蒸發冷卻空調常用形式
(1)間接蒸發冷卻:由于一次氣流中絕對濕度沒有增加,間接蒸發冷卻可以很好地應用于進入冷卻盤管空氣的預先冷卻。
(2)直接蒸發冷卻:它可以在過渡季節的部分時間內利用本身具有的直接蒸發作用降低空調的送風溫度,節省機械制冷能耗 (即使是在干燥地區,直接蒸發冷卻可以代替常規的機械制冷),又可以在冬季作為加濕器使用。
(3)雙級、三級蒸發冷卻:將間接蒸發冷卻與直接蒸發冷卻串聯組合的機組稱為雙級蒸發冷卻,如果再加上輔助制冷冷卻盤管則稱為三級蒸發冷卻。在一些濕度溫度較高的地區或室內舒適度要求較高的場合,采用雙級或三級蒸發冷卻能滿足辦公室、學校、體育館、賓館、商場以及其它類型的建筑物的空調要求。
1.4 目前蒸發冷卻技術存在的問題
(1)從國內對蒸發冷卻的研究來看,雖然在其理論、設備、試驗研究及其應用方面已做了大量的工作,但人們對蒸發冷卻空調機組和空調系統自動控制方面的研究卻較少。目前雖然技術人員能夠提出設計方案,但是空調機組各設備的不同安裝位置,控制程序編寫的通用性差,造成溫濕度控制的不理想,因此合理的控制策略和合理的控制流程將會起到非常重要的作用。
(2)另一個目前十分突出的問題是蒸發冷卻空調機組的分室控制問題,即如何開發研究適合蒸發冷卻空調系統的廉價的變風量末端與主機的控制方案以及室內濕度偏大的問題。
2 集中式蒸發冷卻空調系統控制方案設計
2.1 空調系統運行工況分區的分析
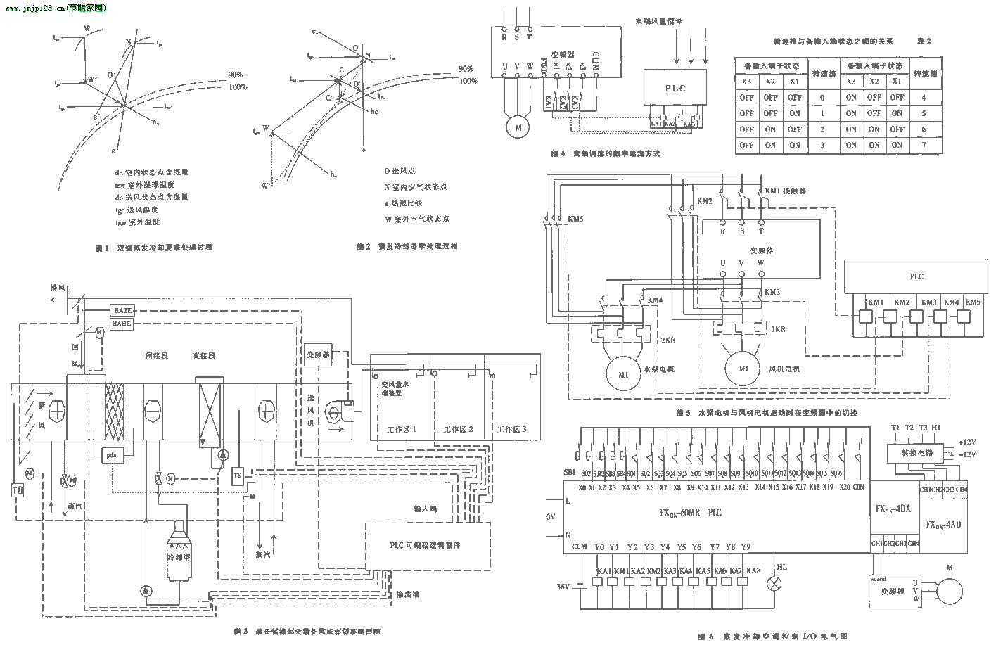
冷卻蒸發空調機組與機械制冷式機組最大的不同它以水作為制冷劑利用循環水直接噴淋未飽和的濕空氣形成增濕、降溫,從而降低室內的熱負荷,由于對室外空氣進行處理,且室外空氣狀態在一年中的波動范圍很大,夏季可分為較熱和炎熱來對待,而冬季可分為較冷和寒冷來對待,對于舒適性氣候可劃分為一個分區來考慮。在空氣調節技術中,有一個被定義為有效溫度的術語,其意為使人感受到舒適的溫度,即與人體感受到的冷熱相對應的溫度。分區的標準可參考表1。
2.2 夏季控制過程
(1)當室外空氣溫度上升到設置溫度轉換點上限時,系統進入分級冷卻控制,首先開啟直接蒸發冷卻設備,直接蒸發冷卻器水泵開啟,室外空氣風閥全開,回風風閥全閉,排風風閥全開,是否采用100%的新風取決于室內外空氣的焓差,當室外空氣的焓值大于室內時,必須使用回風以達到節能。如果室內濕度過大,通過濕度傳感器檢測出來,可對直接蒸發冷卻器的水泵的啟停操作來控制,也可以通過旁通閥的開啟或關閉去控制濕度。
(2)當室內溫度降不到所需的溫度時,此過程可通過室內溫度傳感器來測量。則開啟間接蒸發冷卻器,間接蒸發冷卻器水泵開啟,冷卻塔風扇開啟。如果水泵的功率過大不能采取直接啟動,可通過變頻來啟動,通過對PLC進行編程來控制接觸器的接通和斷開,具體電路將在下面詳細分析。
(3)由于蒸發冷卻空調機組適應于低濕度地區,所以當室外濕球溫度過高時本控制系統未考慮。
2.3 冬季控制過程
(1)當室外溫度下降到冬季溫度控制點以下時,間接蒸發冷卻器,直接蒸發冷卻器水泵關閉,新回風閥的開度預置在(15%和85%)的開度,預熱器的預熱閥打開。
(2)當室內溫度達不到設定值時,有回風溫度傳感器測定,則開啟再加熱盤管的控制閥。用出風溫度傳感器的測量值與PLC內部的設定值比較控制再加熱器的加熱閥使空氣沿等含濕量線被加熱到送風態點。如果室內含濕量過低由室內濕度傳感器檢測到,可直接控制直接蒸發冷卻器水泵的開啟來控制濕度。
2.4 舒適性氣候控制過程
當室外空氣溫度在舒適性溫度范圍內,室內主要是滿足換氣量的要求,可以在全新風條件下運行,風量大小由各末端裝置的設定值通過PIC內部的計算確定送風量,通過變頻器調節風機的風量。
2.5 集中式蒸發冷卻空調系統控制原理圖如圖3所示
2.6 風機總風量的控制
(1)為了盡量降低控制系統的成本,盡可能采用簡單易行的方法。室內末端各風量調節機構采用高、中、低三擋位或更多。風量信號的給定通過室內人員操作控制面板或無線控制方式設置,各末端裝置內安裝有無線接收模塊接收操作人員的指令,然后各末端的無線接收模塊接收到的開關量信號通過線路傳送到PLC內部,PLC通過對各末端信號的識別對其進行處理,經內部計算輸出控制信號控制變頻器改變風機轉速,最終達到控制風機風量的目的。
(2)傳統的變風量末端裝置,室內末端送風量大小的設定如高、中、低三擋位是與風量調節閥閥位一一對應的,即處于不同擋位時的流量與調節閥位的高低成正比。例如,當室內人員根據自身舒適度感受自行將風量擋調至高檔位,則風量調節控制機構控制風量調節閥到相應的閥位處。這一過程需要控制機構確定執行機構什么時刻到指定的閥位處停止,這就造成了末端控制設備成本的增加。可以將風量設定裝置與風量調節機構的控制相獨立,即不通過風量調節閥來調節風量的大小,而是通過風量設定裝置來調節。各末端的風量設定值被PLC檢測到,通過PLC內部的加法器相加,并與系統設計時的最大風量相比,得到實際所需風量相對于最大風量的百分比。將此百分比按一定比例變換成電壓信號或是相關的開關信號去控制變頻器的輸入端,從而控制風機的送風量。
(3)當室內的送風量設定值為零時,即要求關閉風閥,此開關量控制信號一方面被PLC接收,一方面控制風量調節閥關閉,此控制可用繼電器來完成。同理如果在其它的風量擋位應控制風閥全開這一過程,也可以通過對繼電器的控制來完成,不需要考慮風閥的位置信號反饋給定問題,同時電動風閥的全開或全閉都有限位開關防止電機過載或機械損壞。
2.7 風機的變頻控制問題
控制風機的風量必須要調節變頻器的輸出頻率必須首先向變頻器提供改變頻率的信號,這個信號稱為給定信號。而所謂給定方式,是調節變頻器輸出頻率的具體方法,也就是提供給定信號的方式。
2.7.1 模擬量給定方式
直接電壓(或電流)給定,由外部儀器設備直接向變頻器的給定端輸出電壓或電流信號,如本控制通過對各末端風量設定值的檢測由PLC內部經過計算由DkA轉換模塊輸出相應的電壓控制變頻器的輸出頻率。
2.7.2 數字量給定方式
如果變頻器的外接輸入控制端中,有功能預置端,可以將若干個輸入端作為多擋轉速控制端。根據這若干個輸入端子的狀態(接通或斷開),可以按二進位方式組合成3~16擋每一擋可預置一個對應的工作頻率,則風機的轉速的切換可以用開關器件通過改變外接輸入端子的狀態及其組合來實現,所以本控制可用此方式來實現,假設輸入端子X1、X2、X3被預置為多擋轉速的信號輸入端,則通過繼電器KAl、KA2、KA3的不同組合,可輸入7擋或8擋轉速信號(0狀態不計時為7擋,計人時為8擋),如圖4所示。
2.7.3 轉速擋與各輸入端狀態之間的關系(如表2所示)
2.7.4 在使用多擋轉速功能時,必須進行兩步預制
第一步,通過預制,確定哪幾個輸入端子為多擋轉速輸入端子;
第二步,預制與各擋轉速對應的工作頻率(即進行頻率給定)。
2.8 新風、回風、排風風閥的控制問題
通常風閥的自動控制,風閥上都安裝有行程位置傳感器,通過風閥行程位置傳感器的信號來控制風閥的開度從而達到適當的新回風比要求。由于控制系統要對模擬信號進行模數轉換,內部還要進行計算,最后經模數轉換來驅動風閥電機到相應的位置,從而達到要求。其程序設計比較復雜且風閥成本也比較高。由于本系統用PLC當主控制器,可以用開關量信號取代模擬量信號,且PLC用梯形圖編程,程序編寫比較容易,且易實現。新風、回風、排風風閥在全開或全閉處都有開關量閥位信號且在15%、30%、60%、85%處都有開關量閥位信號送入PLC內部,由于新風和排風可以聯動控制,可以省去排風閥的閥位信號。例如:要求新回風風閥開度在(15%,85%)時,PLC的輸出端輸出開關量信號控制繼電器或接觸器,控制新回風風閥電機的轉動,當到達15%、85%時,15%、85%開關量閥位信號送人PLC內部,PLC內部由于程序的控制,控制新回風風閥電機的停止。這些閥位的控制都是在不同的運行工況下進行的有程序的編寫來完成。
2.9 交流異步電動機的直接啟動和變頻啟動問題
(1)交流異步電動機直接啟動控制線路簡單、經濟、操作方便,但受到電源容量的限制,僅適用于功率在1OKW以下或滿足全壓啟動經驗公式的電動機。當電動機容量較大(大于10KW),啟動時產生較大的啟動電流,會引起電網電壓的下降,因此必須采用降壓或變頻啟動的方法,限制啟動電流。
(2)由于本控制系統風機采用變頻啟動所以不會對電網造成影響,但是如果間接蒸發冷卻水泵功率超過10KW或不滿足全壓啟動經驗公式就不能直接啟動。可以通過PLC對變頻器的控制實施“1拖X”控制(由一臺變頻器控制多臺電機)。工作情況是:當蒸發冷卻空調機組啟動時,首先有變頻器啟動送風機電機。當滿足一定工況時控制系統要求啟動間接蒸發冷卻水泵,這時由PLC控制,把送風機電機切換至工頻運行,然后把間接蒸發冷卻水泵電機切換到變頻器中,變頻器的輸出頻率由OHZ逐漸上升直至工頻來減小啟動電流。經過一定的延遲由PLC內部計時,再把送風機電機接人變頻器中,如圖5所示。如果不采用這樣的控制也可以用PLC控制間接蒸發冷卻水泵電機,以Y/△的降壓啟動方式。
3 控制設備介紹說明
PLC是以微處理器為核心,綜合了計算機技術、自動控制技術和通信技術發展起來的一種通用的工業自動控制裝置,它具有可*性高、體積小、功能強、程序設計簡單、靈活通用、維護方便等一系列的優點,因而在工業、能源、化工、電力等領域中有著廣泛的應用。本控制系統選用三菱FX系列PLC可編程邏輯器件,FX系列PLC的系統配置靈活,價格便宜,用戶除了可以選用不同型號的FX系列PLC外,還可以選用各種擴展單元和擴展模塊,組成不同I/O點和不同功能的控制。
3.1 各功能模塊介紹
3.1.1 FXON-60MK-D型主單元PLC
FXON—60MR—D可組成24~128個I/O點,用戶存儲器容量為2000步。FXON有20條基本指令,2條步進指令,55條功能指令。FXON有較強的通信功能,可與內置RS~232C通信接口的設備通信。使用FXON一485ADP模塊,與計算機可實現1:N (最多8臺)的通信。
3.1.2 模擬量輸入模塊FX2N-4AD
FX2N一4AD是模擬量輸入模塊,有四個輸入通道,分別為通道1(CHl)、通道2(CH2)、通道3(CH3)、通道4(CH4)。每一通道都可進行A/D轉換,其分辨率為12位。輸入的模擬電壓值范圍從直流-10~+IOV,分辨率為5mV。若為電流輸入,則電流輸入范圍為4~20mA或-20~20mA,分辨率為201xA。FX2N一4AD內部共有32個緩沖寄存器(BFM),用來與主機FX2N主單元PLC進行數據交換,每個緩沖寄存器的位數為16位。
3.1.3 模擬量輸出模塊FX2N-4DA
FX2N—4DA是模擬量輸出模塊,有4個輸出通道,分別為通道1(CHl)、通道2(CH2)、通道3(CH3)、通道4(CH4)。每一通道都可進行D/A轉換,其分辨率為12位。輸出的模擬值范圍,電壓為-10~+10V,電流為OmA~20mA,分辨率前者為5mV,后者為20μA。FX2N—4DA內部共有32個緩沖寄存器(BFM),用來與FX2NPLC之間進行數據交換,每個BFM的位數是16位。
3.2 UO電氣接口圖(如圖6所示)
3.3 UO地址表
該系統的輸入信號有啟動開關、各運行工況開關、風閥位置開關、末端設定風量開關、溫度、濕度傳感器(T1、T2、T3、H1)等。輸出信號控制的對象有水泵、水閥、送風風機、風閥等,采用FX系列PLC控制,其輸入、輸出地址如表3所示。
3. 控制系統的調試
PLC控制系統的安裝接線,只需將現場的各種設備與PLC相應的I/O端相連。PLC軟件設計和調試大多可在實驗室里進行,用模擬試驗開關代替輸入信號,其輸出狀態可以觀察PLC上的相應發光二極管,也可以另接輸出模擬試驗板。模擬調試好后,再將PLC控制系統安裝現場,進行聯機調試,這樣即省時間又很方便。由于PLC本身的可*性高,又有完善的自診斷能力,一旦發生故障,可以根據報警信息,迅速查明原因。
4 結束語
該文章設計了集中式蒸發冷卻空調自控系統,并給出了具體的控制方案,在一些具體細節問題上給出了具體的控制思路,下一步的工作將是通過對程序優化來加以完善,使得整個空調系統達到最佳的溫濕度控制,同時大大降低其能耗。
參考文獻
1 黃翔.強天偉.蒸發冷卻空調機組自動控制初探,陜西建筑暖通空調專刊.2001;1
2 賀進寶.黃翔.梁才航.家用蒸發冷卻變風量中央空調送風系統自動控制方案的探討.建筑科學,2004;20(增刊):160~165
3 黃翔.強天偉.武俊梅等.蒸發冷卻空調系統自動控制方案的探討.暖通空調.2003;33(4):109~112
4 玉琪.王強.劉旭等.中央空調選型、調試、控制和維修,北京:人民郵電出版社,2003;350-351
5 張燕賓.電動機變頻調速圖解北京:中國電力出版社,2003;66~67
6 張燕賓.電動機變頻調速圖解.北京:中國電力出版社,2003;69~70
7 漢琪.盛黨紅.鄧東華.電器控制與可編程序控制器應用技術.南京:東南大學出版社,2003;67~67
8 漢琪.盛黨紅.鄧東華.電器控制與可編程序控制器應用技術.南京:東南大學出版社,2003;143
9 漢琪.盛黨紅.鄧東華.電器控制與可編程序控制器應用技術.南京:東南大學出版社,2003;155~157


|